PAP
Rénovation - Logement
Bureau : TP-Architecture
Le projet PAP consiste en la rénovation d’une maison unifamiliale.
La maison initiale présentait un séjour relativement sombre avec une cuisine séparée. Le bâtiment se caractérise par des demi-niveaux sur le côté droit et une double hauteur dans le hall d’entrée.
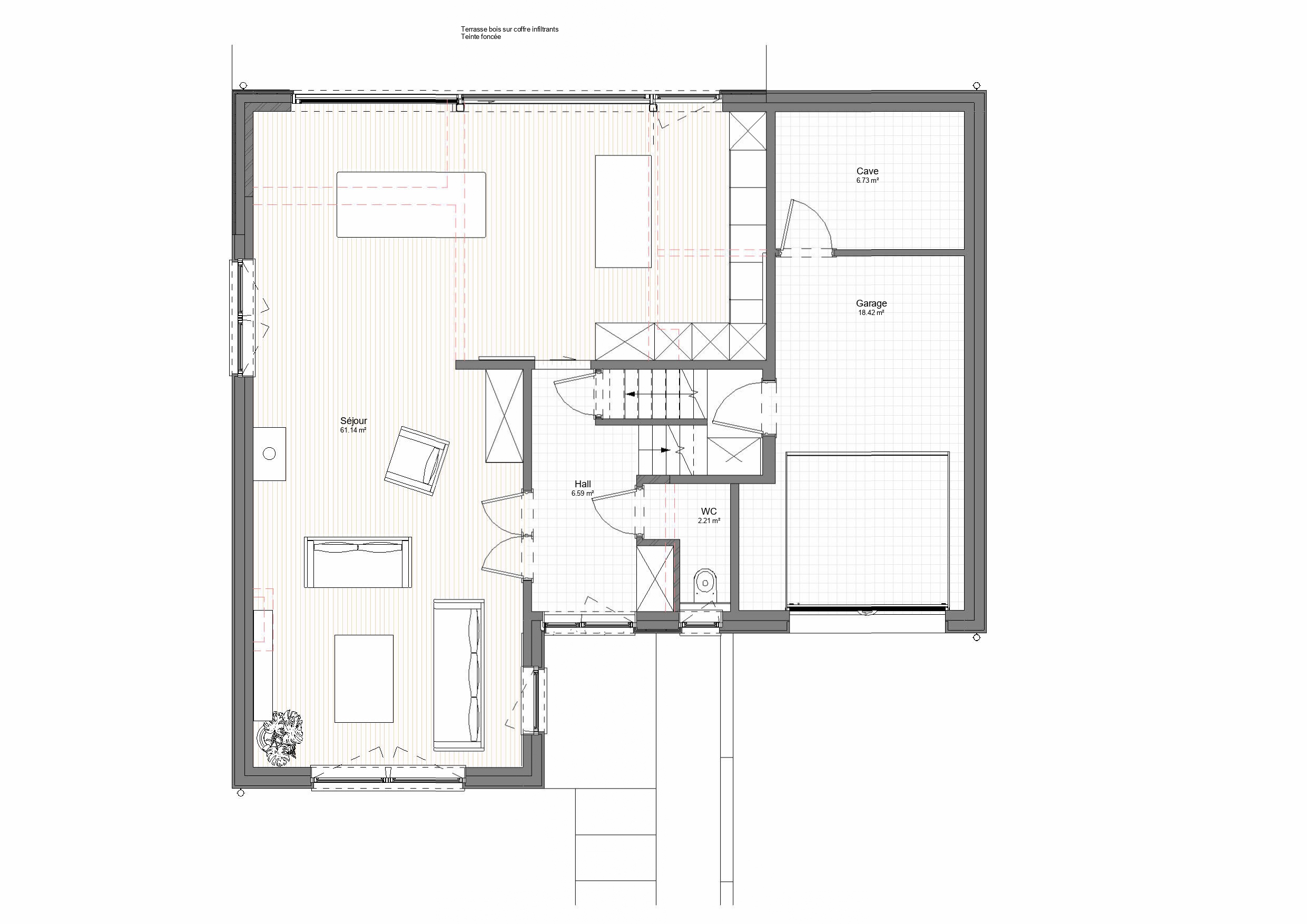
Le choix a été fait de modifier les planchers de la partie arrière — auparavant alignés sur les demi-niveaux — afin de les raccorder aux niveaux principaux, dans le but de maximiser les surfaces du séjour et de la salle de jeux.
Une petite extension a été créée en façade arrière pour rationaliser l’espace et permettre l’installation d’une grande baie vitrée.
Étant donné la nécessité d’ajouter une colonne métallique, un coulissant asymétrique a été choisi afin d’aligner celle-ci avec la chicane du châssis.
La brique de parement existante a été retirée pour permettre la pose d’un complexe isolant avec briquette collée, améliorant ainsi la performance énergétique du bâtiment.
Pour alléger la perception de la façade avant et intégrer harmonieusement la nouvelle extension, un bardage en bois vertical ajouré a été mis en place sur certains volumes.



















