L'Escouffiaux
Construction neuve - Logement
Bureau : TP-Architecture
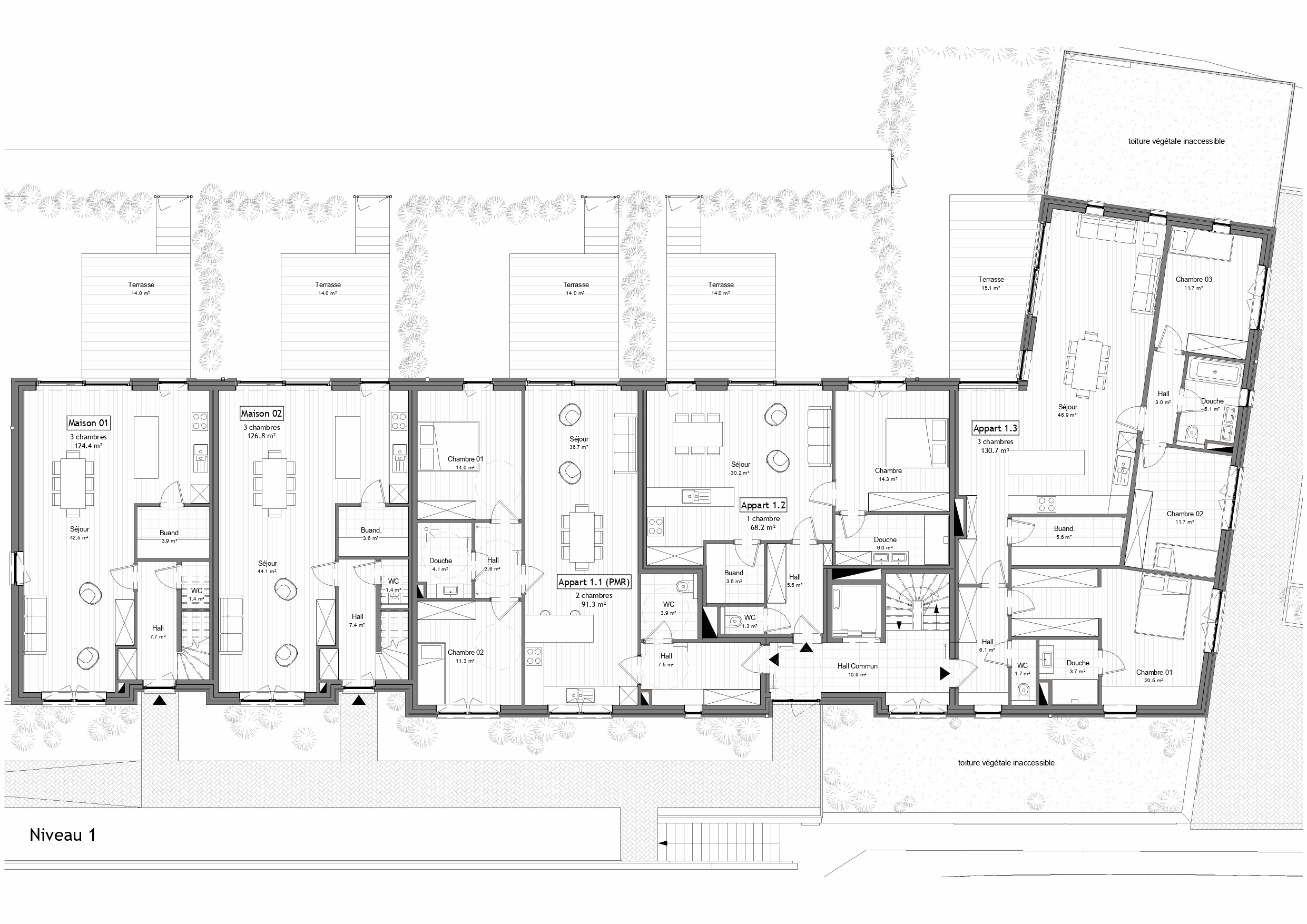
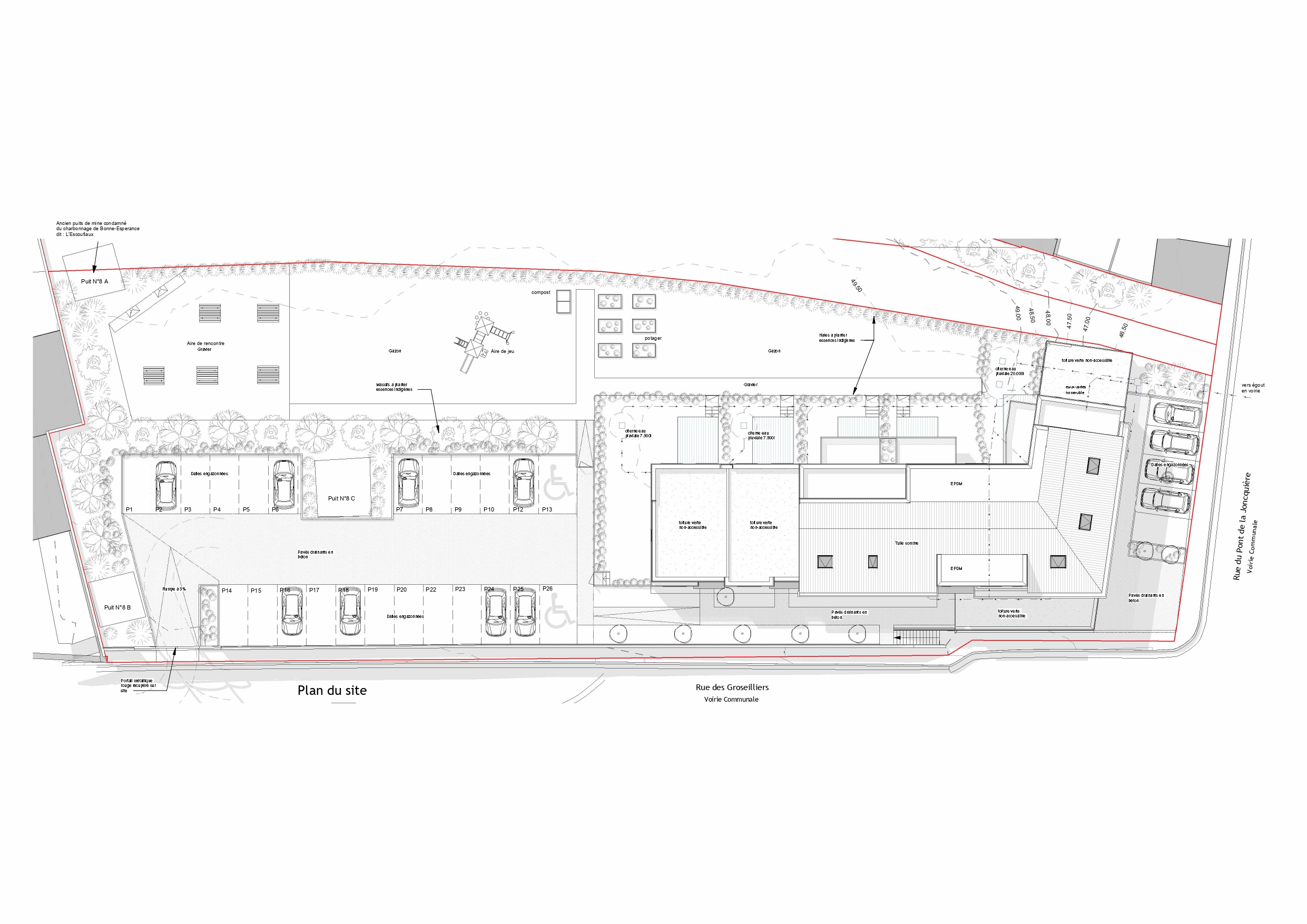
Ce projet concerne la construction d’un immeuble de huit appartements accompagné de deux maisons mitoyennes, sur le site d’une ancienne friche minière à Wasmes.
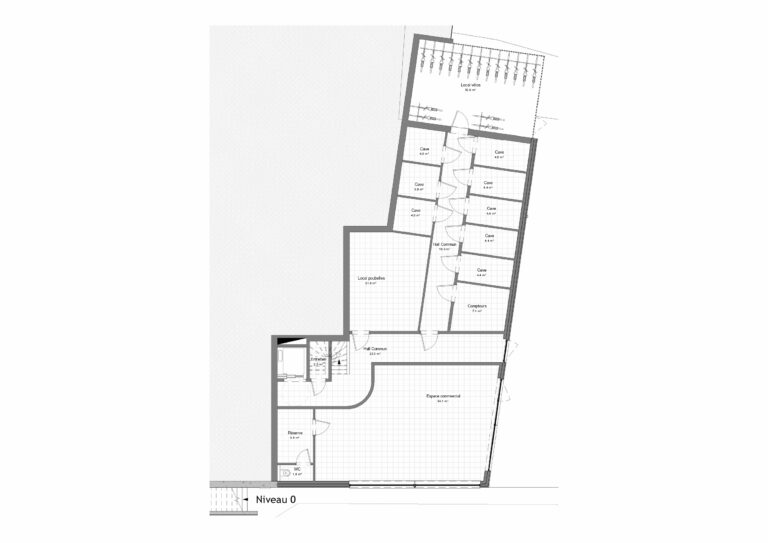
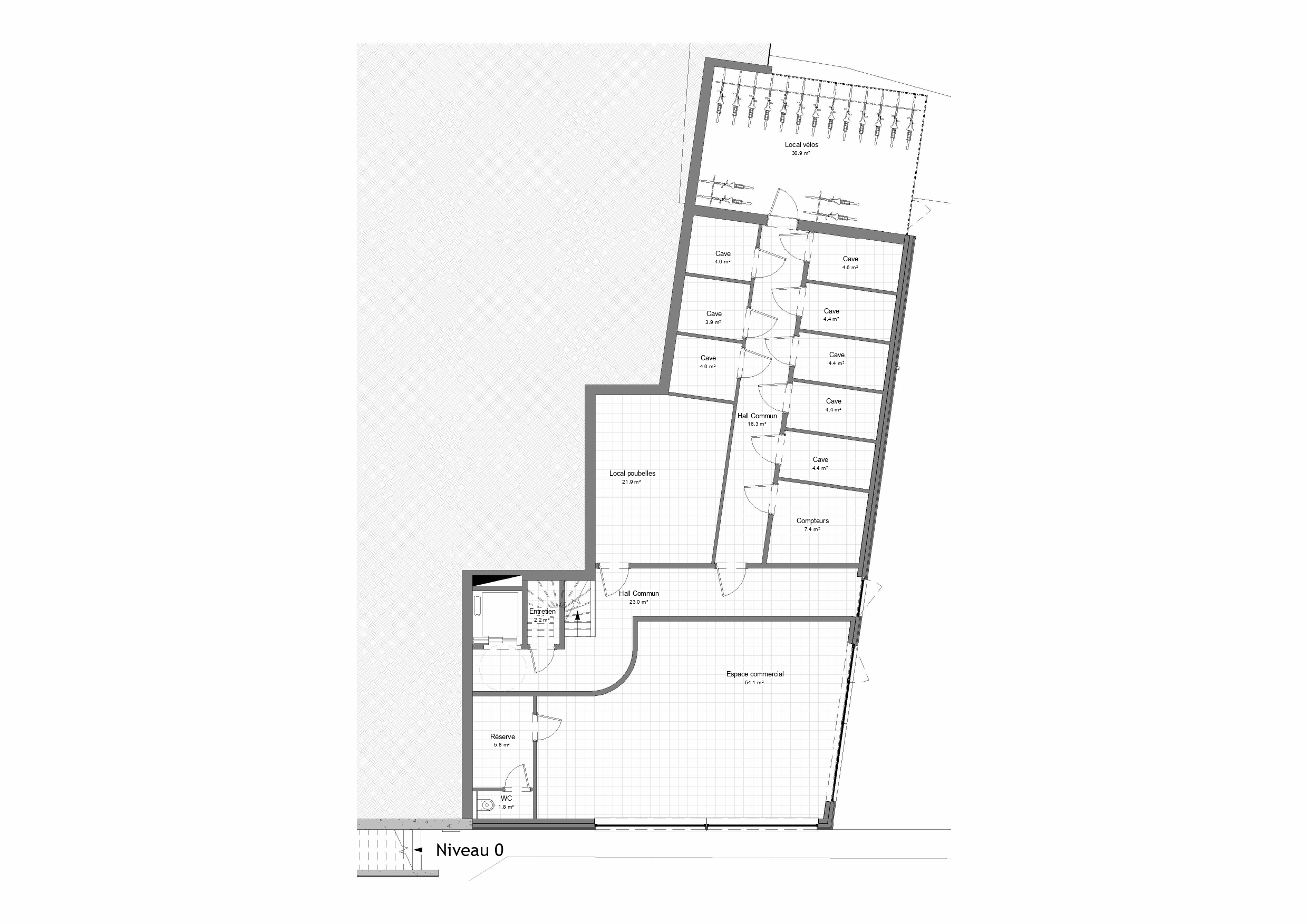
Le terrain comporte trois anciens puits de mine, rendant impossible toute construction dans un rayon de 20 mètres autour de ceux-ci. En raison de la pollution du sol, il a été décidé de limiter les mouvements de terre et de renoncer à un parking souterrain, celui-ci étant donc aménagé en surface sur le côté du bâtiment.
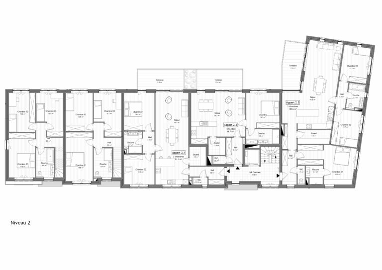
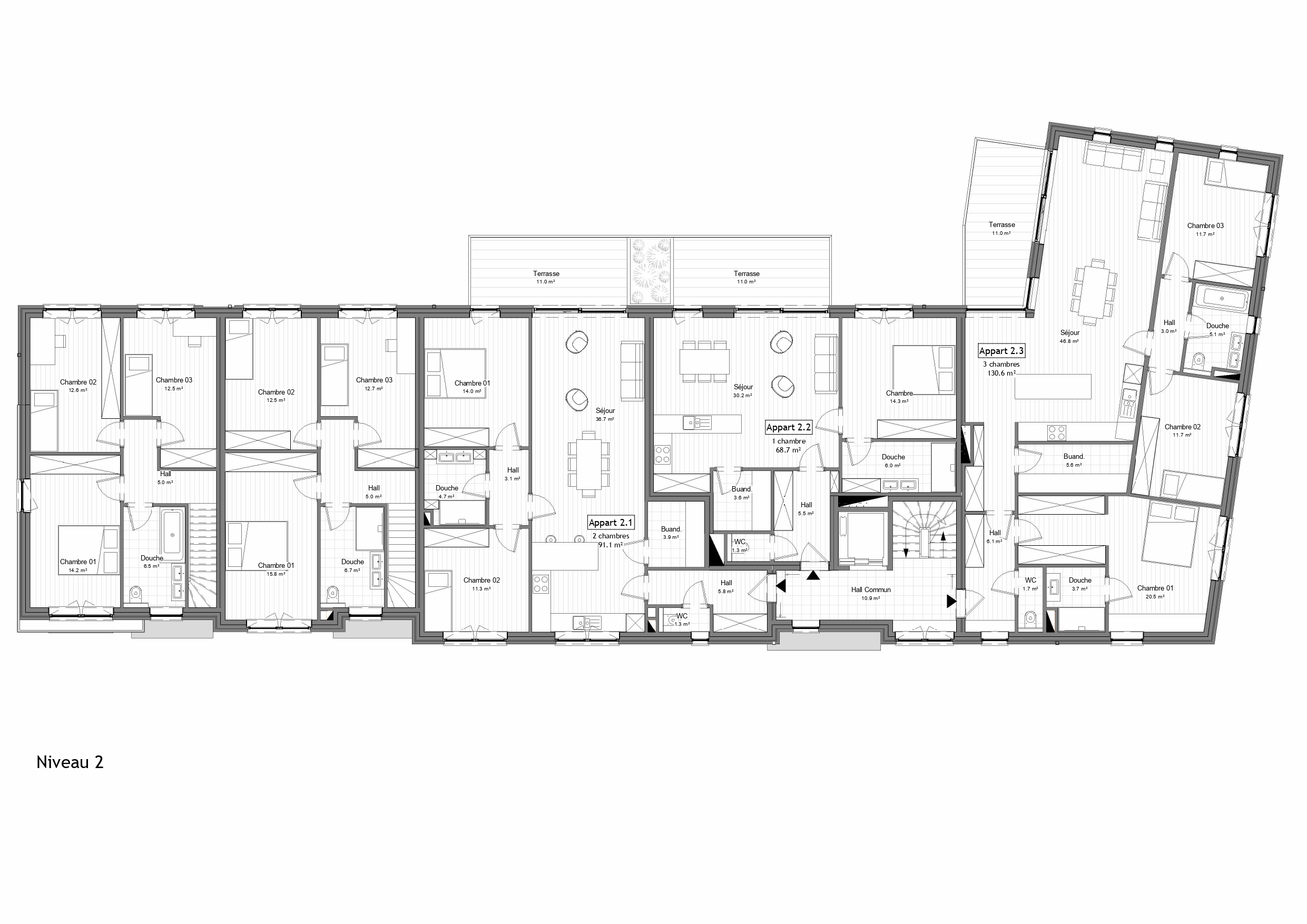
L’immeuble comprend huit logements :
deux appartements une chambre,
deux appartements deux chambres,
deux appartements trois chambres,
et deux penthouses.
Un espace commercial est également prévu au niveau inférieur, en façade avant.

























