Nassogne
Construction neuve - Logement CLT
Bureau : TP-Architecture
Ce projet prend place sur une grande parcelle située en périphérie de Nassogne, offrant une superbe vue sur la vallée.
Cependant, la parcelle se trouve en bordure de la zone d’habitat du plan de secteur, ce qui limitait fortement la surface constructible entre la limite agricole et la bande de recul de trois mètres vis-à-vis de la propriété voisine.
Étant en zone autonome pour le traitement des eaux usées, l’ensemble des aménagements techniques devait également s’intégrer dans ce périmètre restreint.
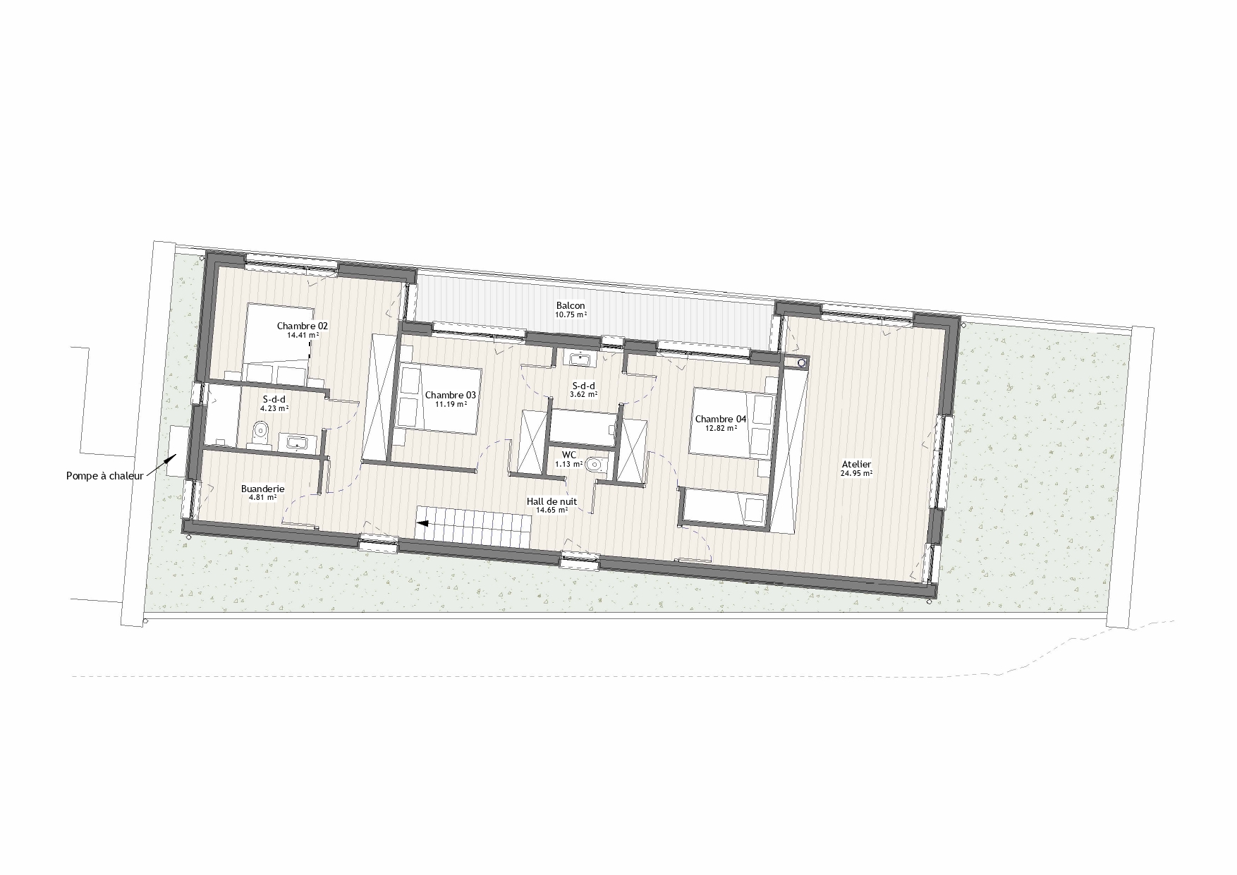
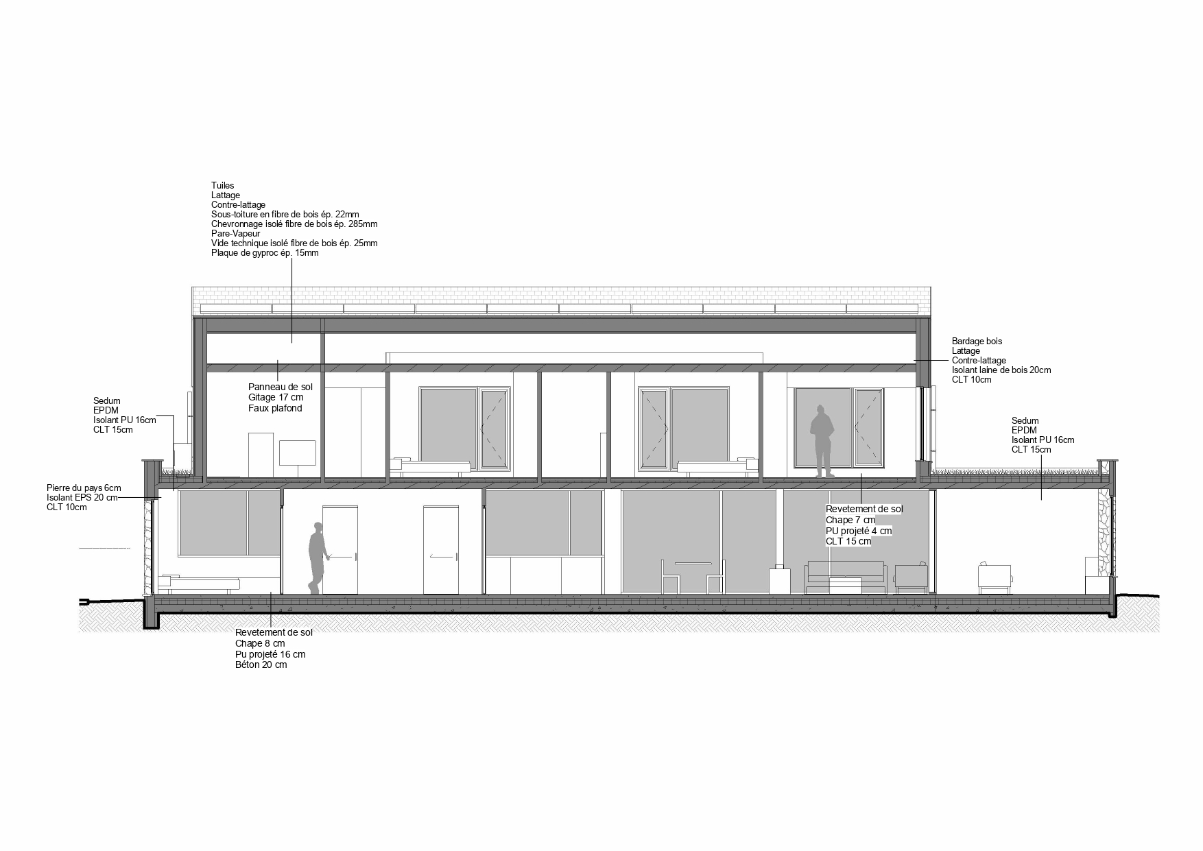
Le projet est conçu comme une longère traditionnelle posée sur un socle en pierre du pays. Ce socle abrite les espaces de vie et met en valeur la vue vers la vallée, avec la possibilité d’une ouverture sur une terrasse couverte également orientée vers le paysage.
La construction est prévue en CLT apparent à l’intérieur, avec un parement extérieur en bardage bois et en pierre de schiste local.

















